Interior + Technicalcompleted

Private Palace

Qatar
2025
---- sqm
3 months
PalaceLuxuryInterior DesignTechnical Drawings3D VisualizationAutoCAD3D MaxCorona Render

Project Overview

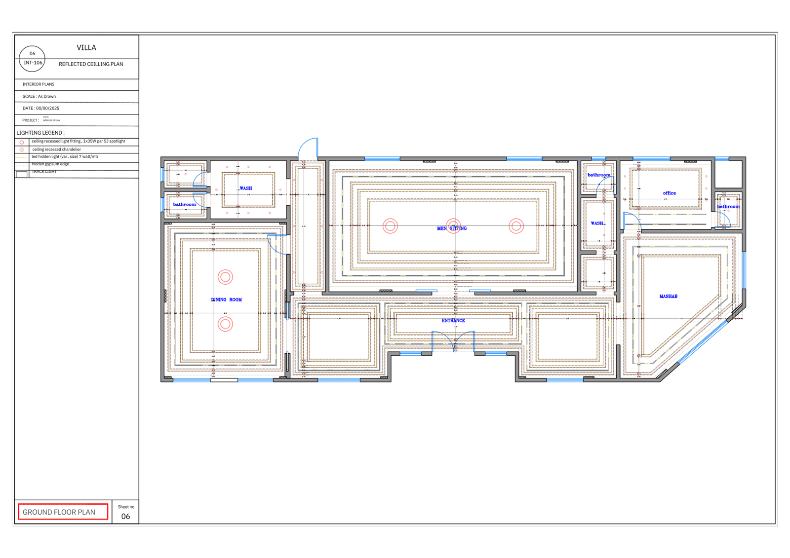
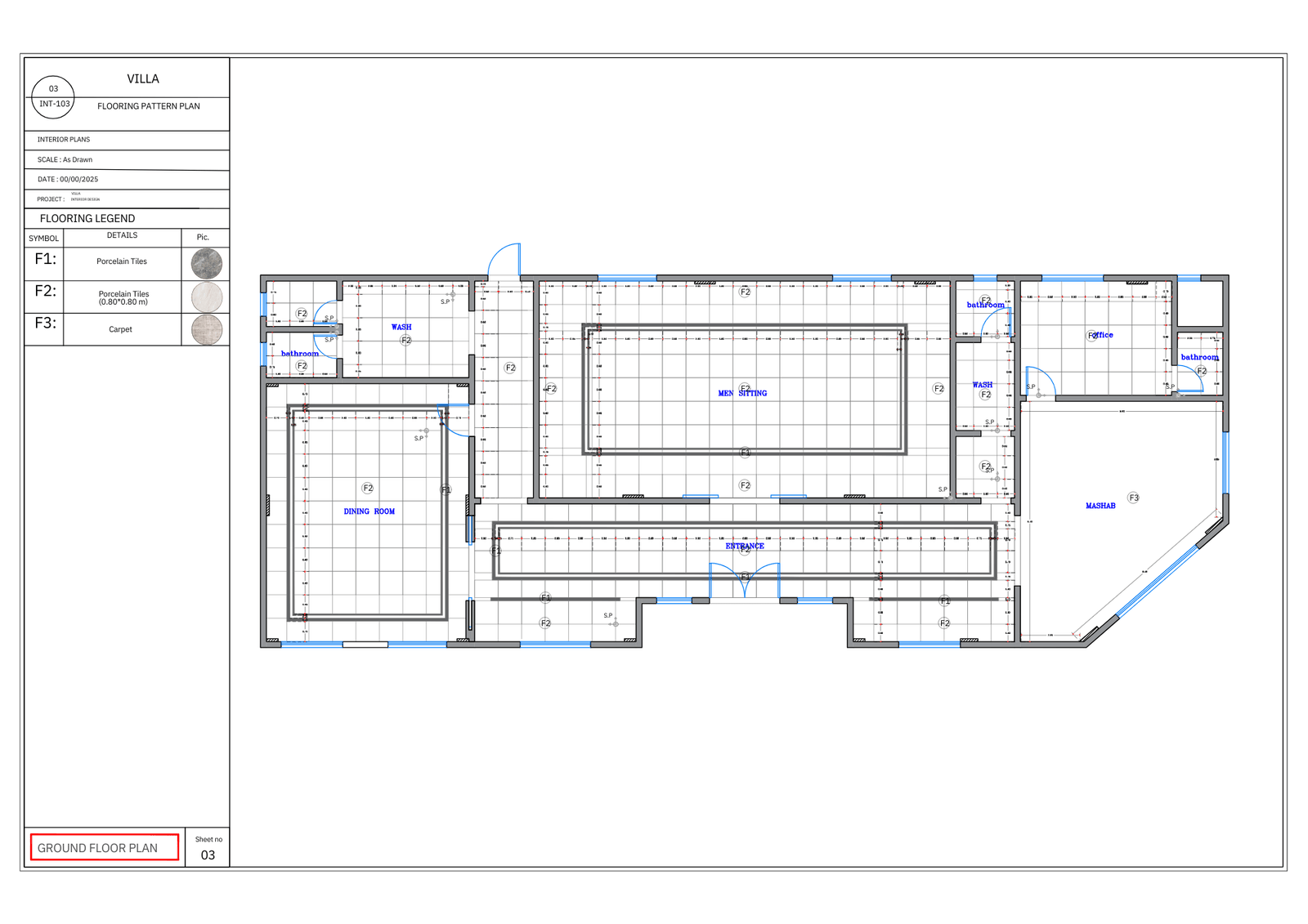
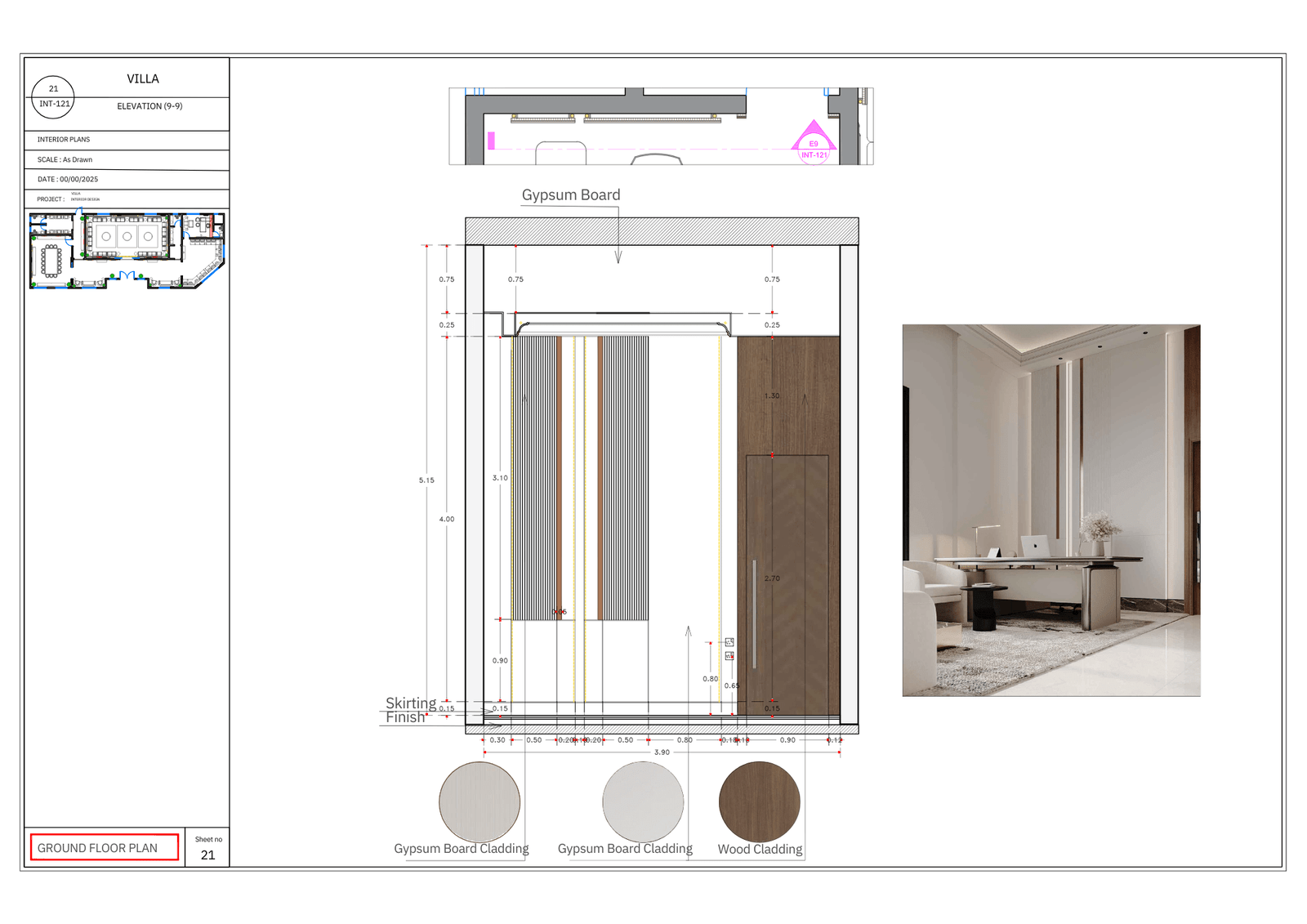
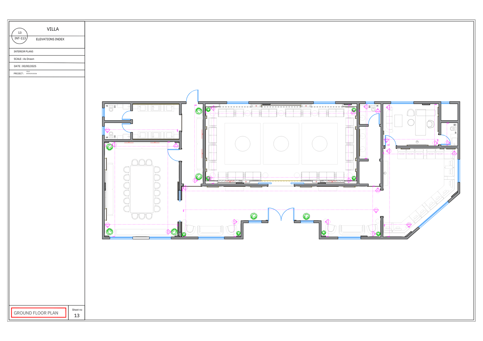
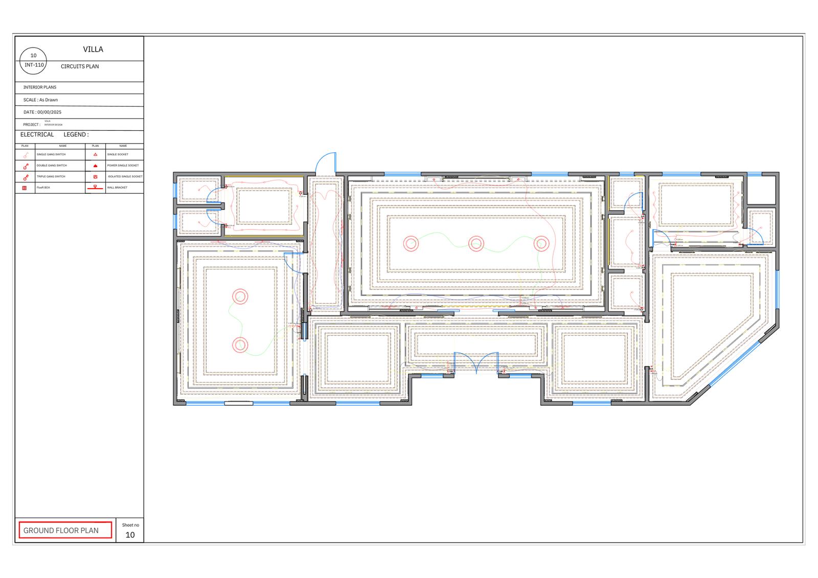
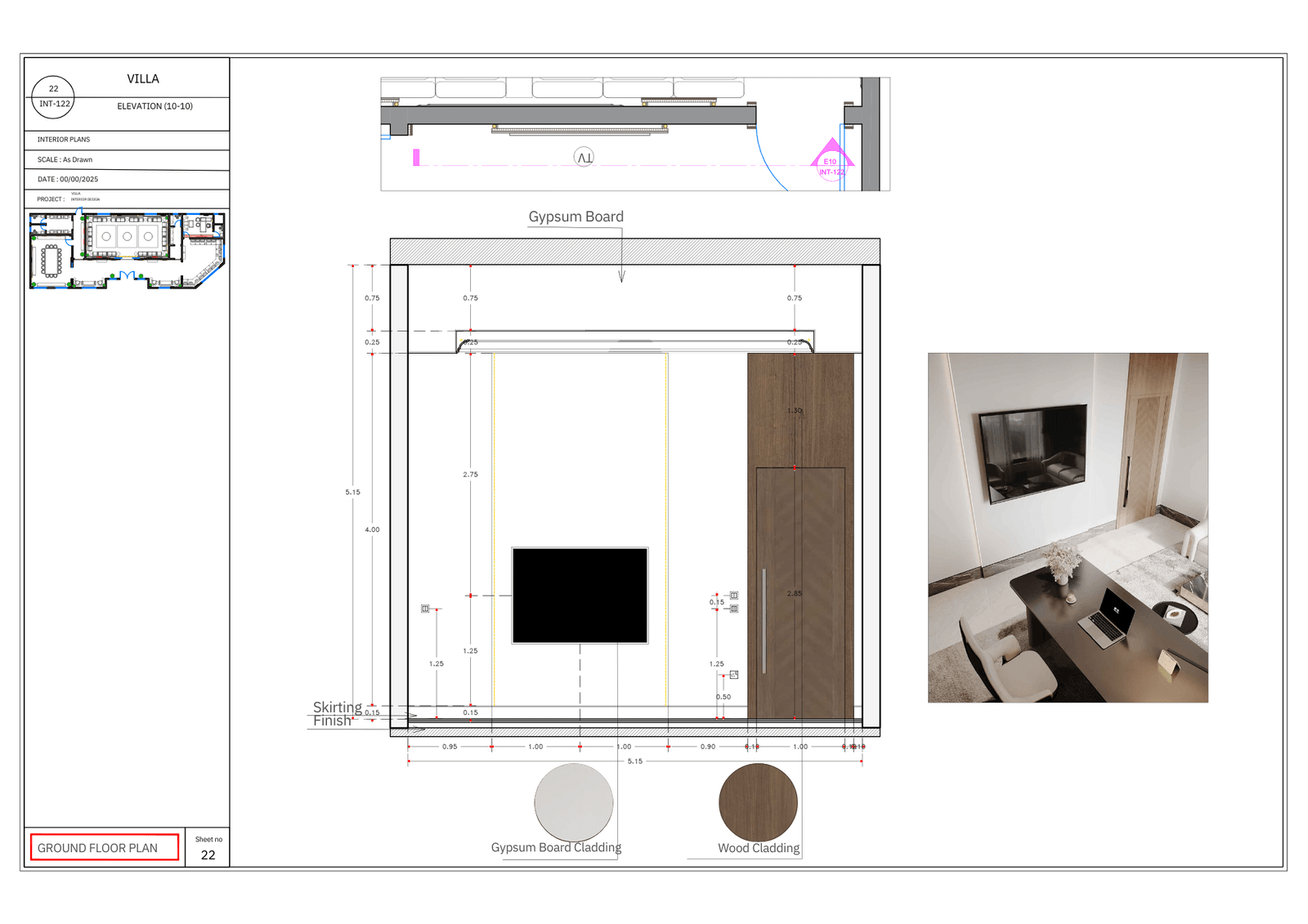
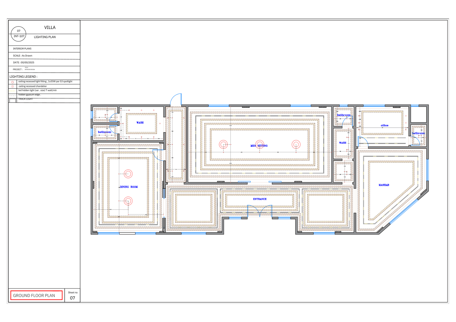
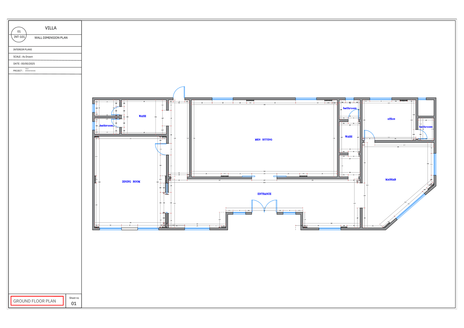
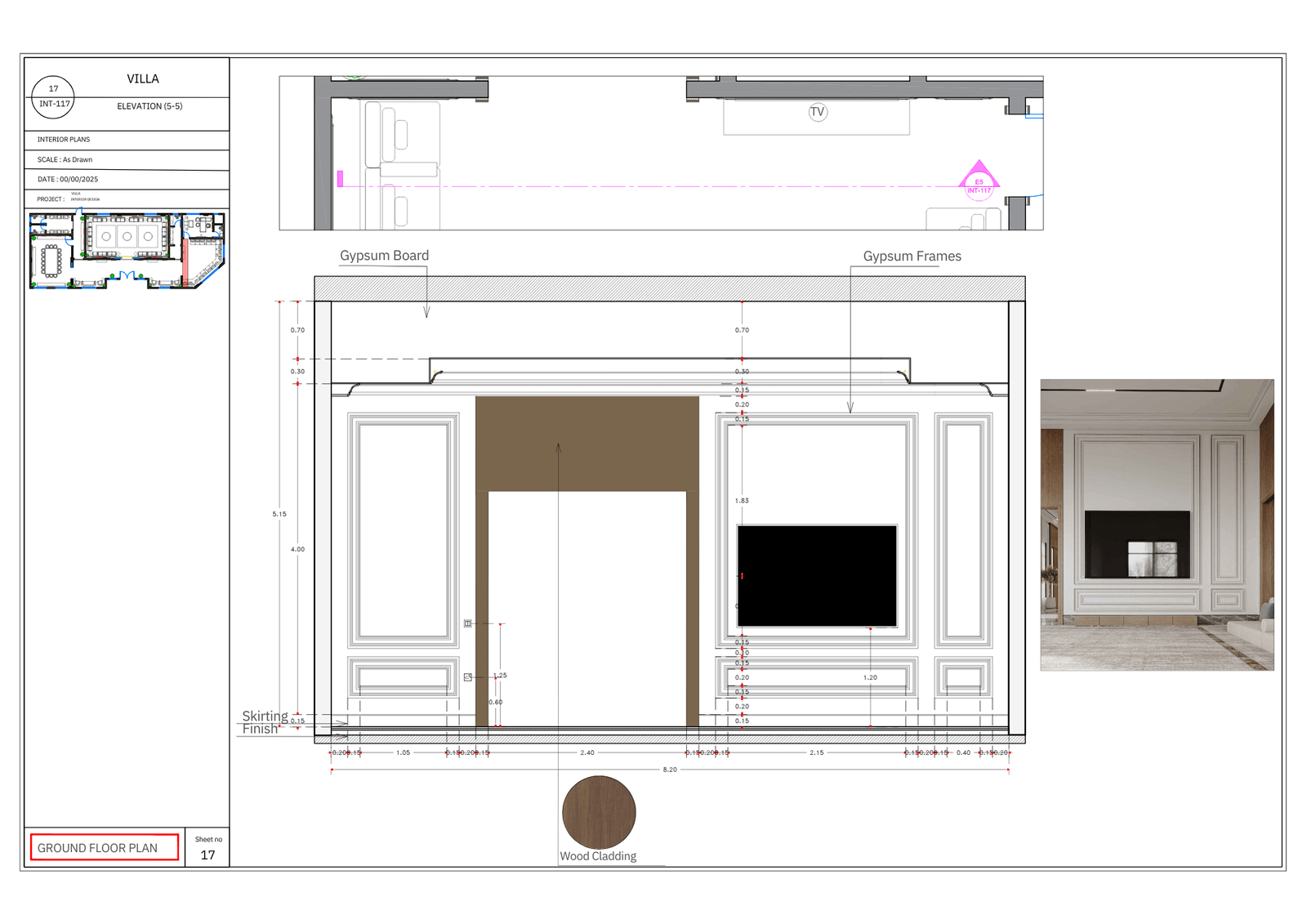
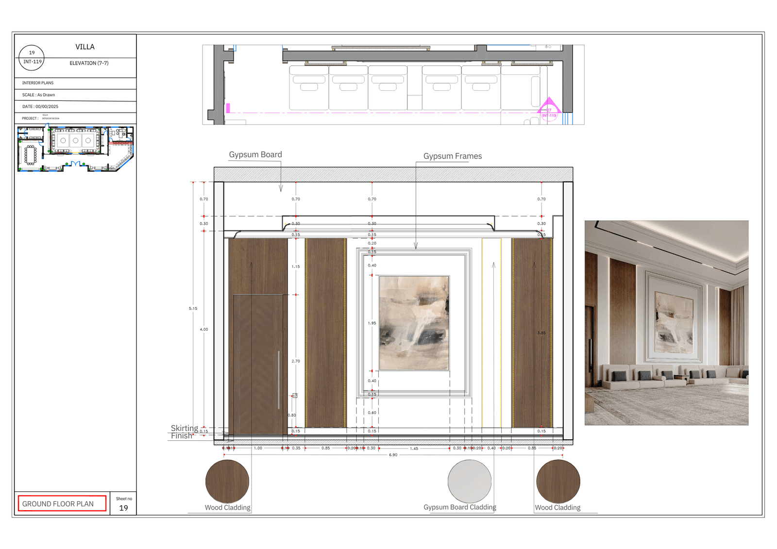
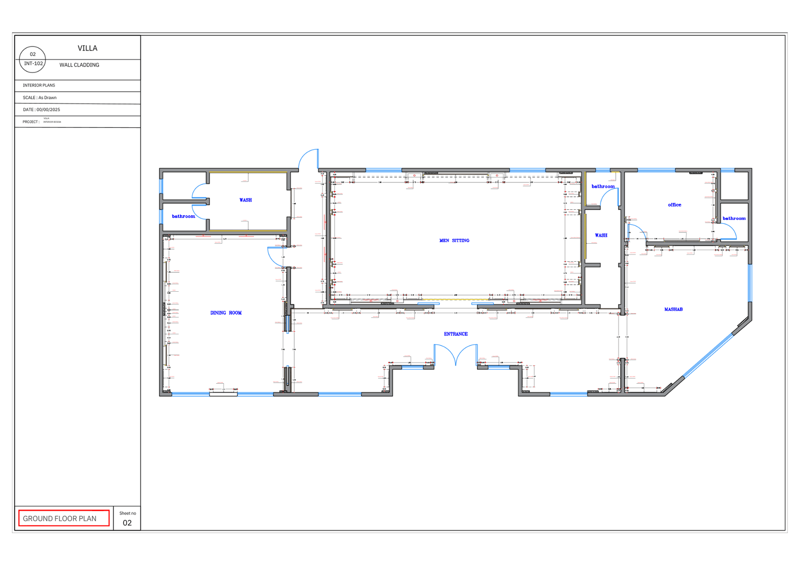
This project involved the interior design and execution drawings for a luxury private palace in Qatar. The design concept aimed to create an elegant and timeless atmosphere that reflects sophistication, comfort, and harmony across all spaces. My responsibilities included developing the interior design concept, selecting materials and finishes, producing high-quality 3D visualizations, and preparing precise working drawings to ensure accurate on-site implementation. The project required a balance between aesthetic refinement and functional practicality, resulting in a cohesive and luxurious living environment. The palace features multiple majlis areas, grand lobby, and extensive parking facilities, showcasing traditional Middle Eastern architecture with modern amenities and luxurious finishes.

Project Details

Client:

Private Client

Duration:

3 months

Area:

---- sqm

Status:

completed

Role:

Interior Design Development and Preparation of Detailed Working Drawings

Software:

AutoCAD, 3ds Max, Corona Render

3D Renders Gallery

Technical Drawings Gallery