technicalcompleted

Lusail Plaza Tower

Lusail, Qatar
2025
1.1 million sqm
2 months
Mixed-UseHigh-riseLOD 400RevitTechnical OfficeDoor SchedulesFire Curtains

Project Overview

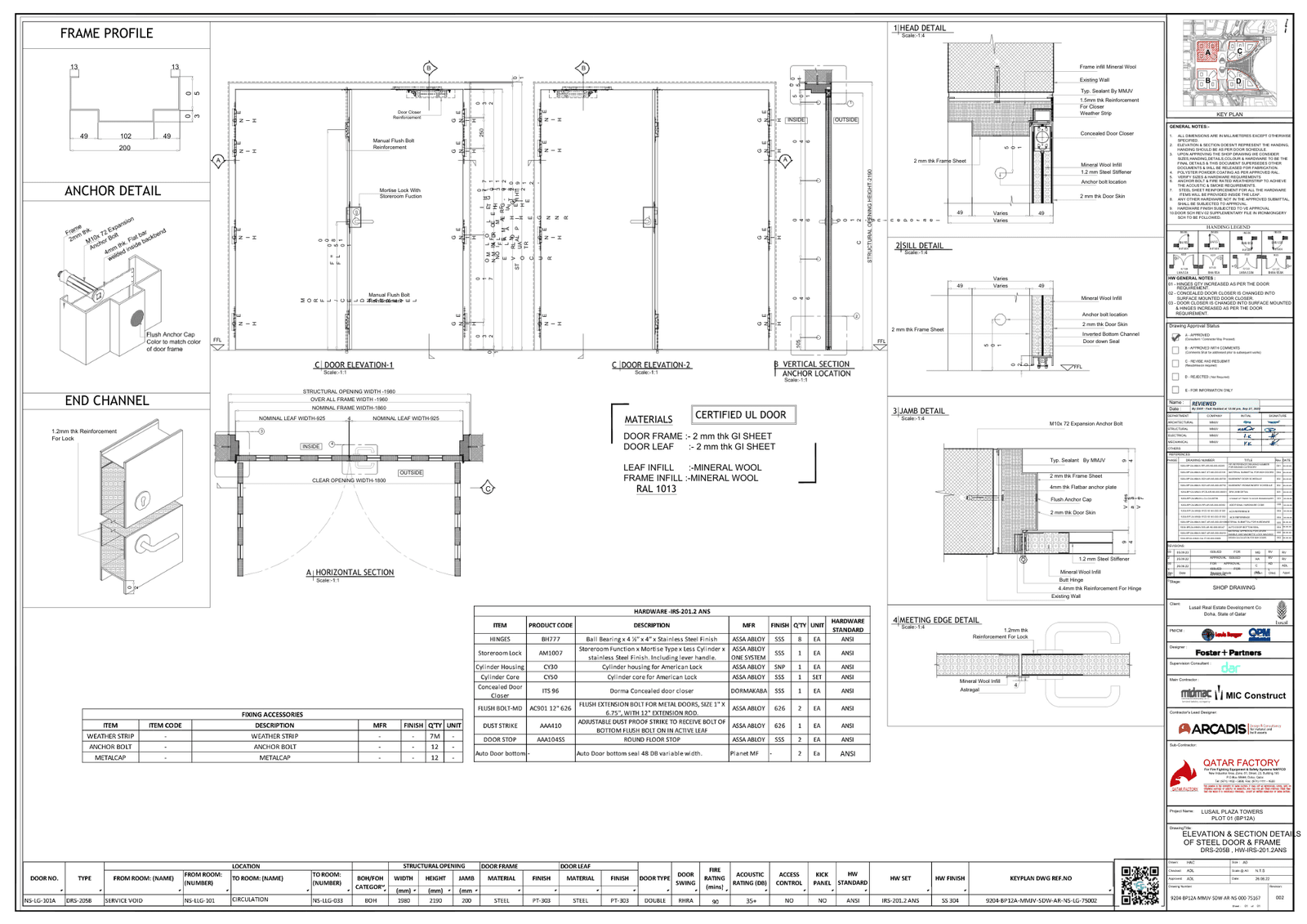
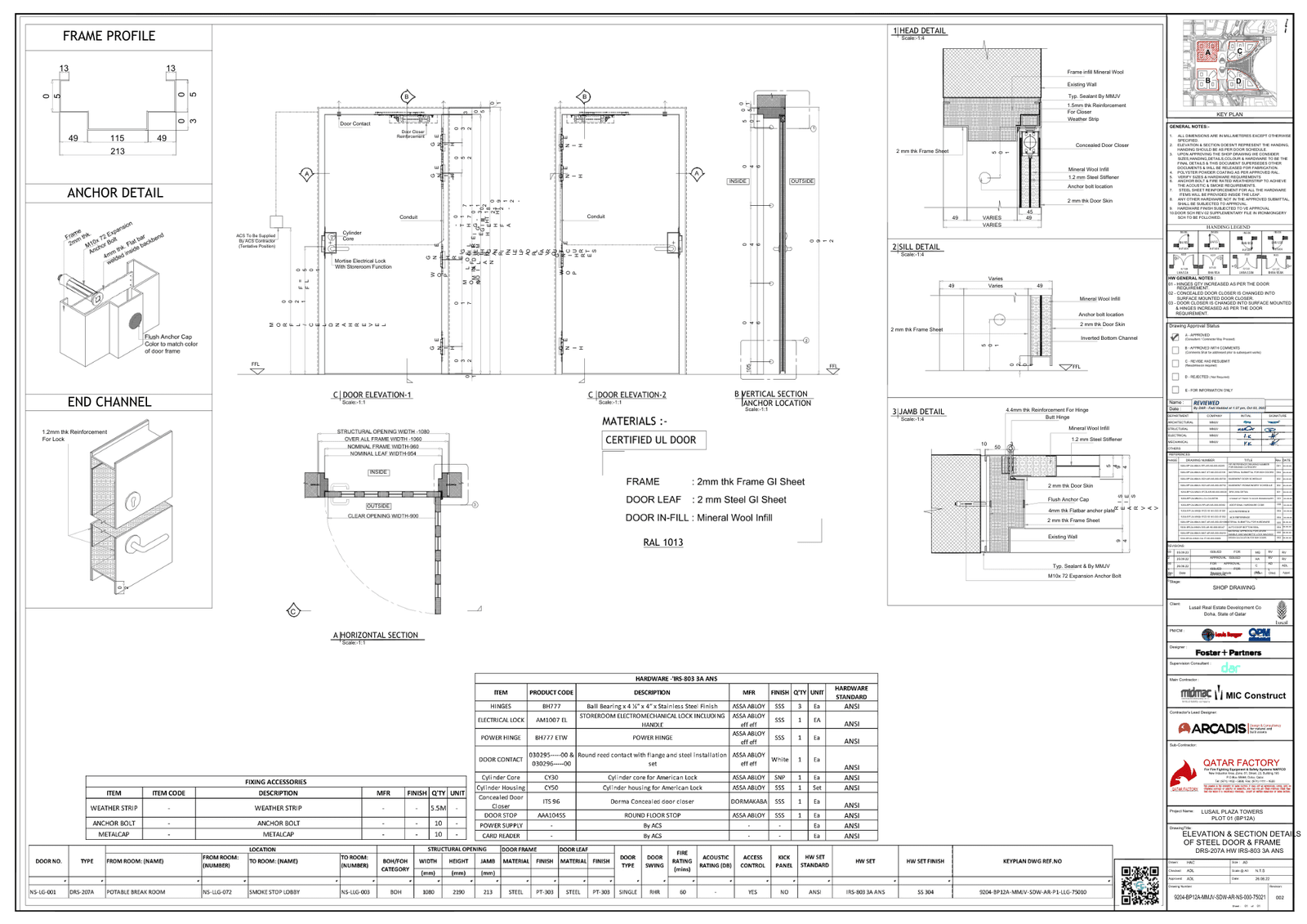
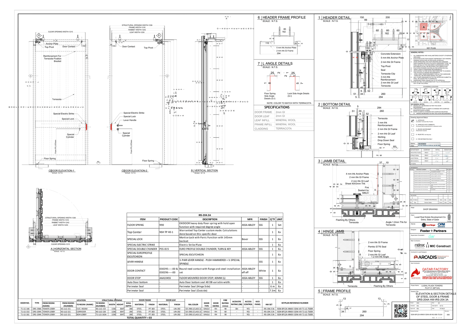
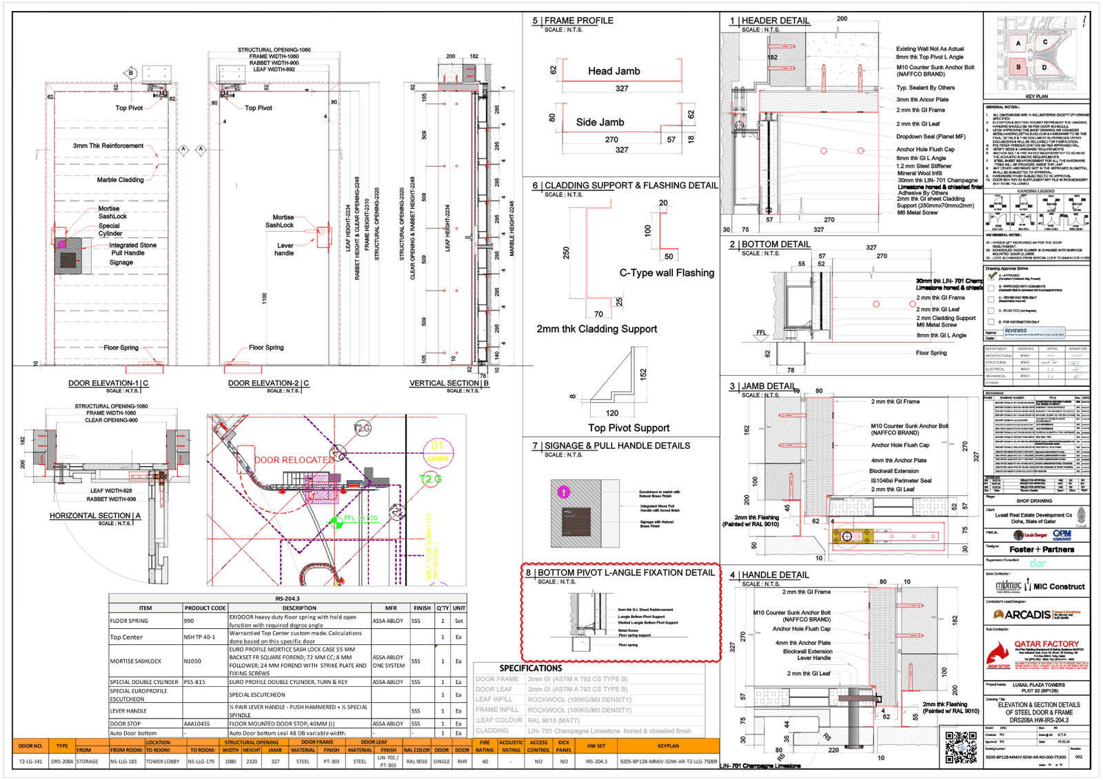
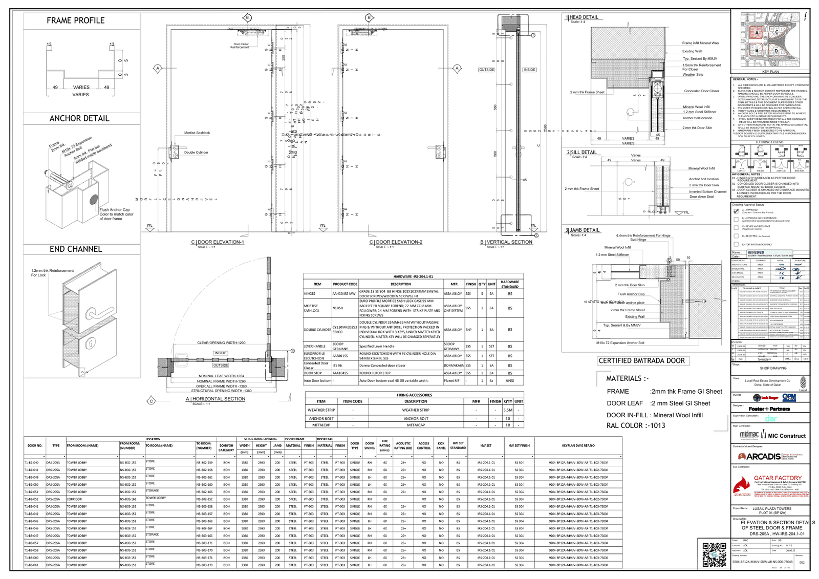
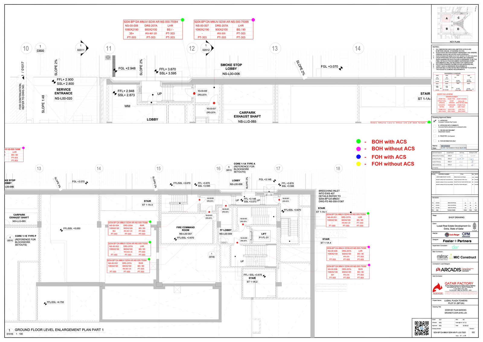
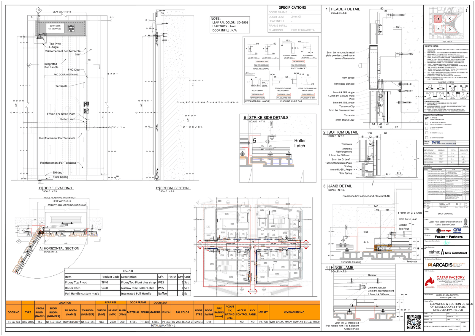
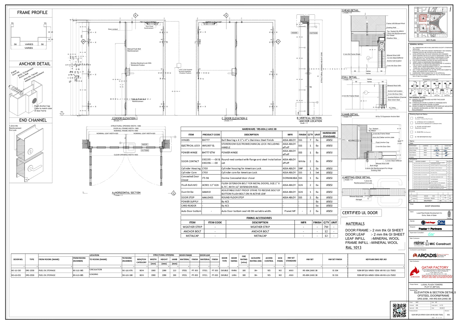
Lusail Plaza Tower is a landmark mixed-use twin high-rise development located in Lusail City, Qatar. Designed as part of a major urban hub, the towers combine office, commercial, and public spaces within a modern architectural framework. My contribution focused on the detailed design and documentation stage, where I prepared over 930 door execution drawings and 50 fire curtain drawings developed to LOD 400 standards using Revit. This high level of detailing ensured design precision, coordination across disciplines, and compliance with international safety and performance standards, contributing to the overall efficiency and accuracy of the project's construction documentation. Throughout the process, I collaborated closely with a multidisciplinary international team to maintain seamless coordination and ensure the successful delivery of high-quality technical documentation.

Project Details

Client:

Lusail Development Company

Duration:

2 months

Area:

1.1 million sqm

Status:

completed

Role:

Preparation of Door Schedules and Fire Curtain Detailed Drawings (LOD 400)

Software:

Revit

Deliverables:

930+ door execution drawings, 50 fire curtain drawings

Technical Drawings Gallery